Проект САД-5
Дома из бруса » Все проекты » Проекты садовых домиков » Домик 5,5х3,5 (САД-5)
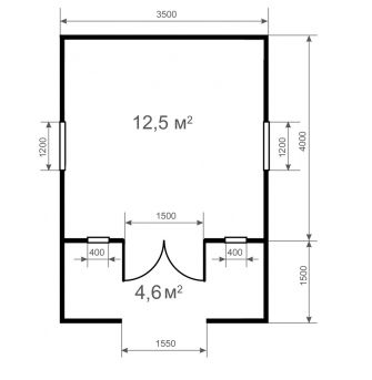
Размеры: 5,5×3,5 м. Общая площадь: 17,1 м2. Срок строительства: 5-7 дней.
Профилированный брус 145х95 . Цена: 203 тыс.руб.
В стоимость входит:
Стены, двери филенчатые 40 мм, петли, дверной замок, окна одинарные остекленные.
Полы - доска половая толщиной 36 мм.
Потолки - вагонка толщиной 16 мм.
Нижняя обвязка дома, включая лаги пола - брус 150х100 мм.
Крыша - стропила из доски 150х50 мм, обрешетка кровли доска 150х25 мм.
Кровля - ондулин или гофролист оцинкованный (по желанию заказчика, за отдельную плату металлочерепица или любая другая кровля)
Высота потолка от внешних стен 2,3 м, в центре 2,7 м.
Фундамент столбчатый (за отдельную плату возможен фундамент на винтовых сваях, стоимостью 20 тыс.руб.)












