Обратная связь
Посчитать проект:
Задать вопрос:
Связаться с нами:
8 (495) 222-18-78
8 (916) 641-54-54
Кредит на дом

Кредитование. Материнский капитал. Военный капитал.
Типовой договор

Договор: скачать.
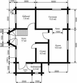
Проект Б13 - дом из бревна 8 на 8
| Навигация: ПрофильАрт - Проекты - Дома из оцилиндрованного бревна (проекты) |
Название проекта: Б-13. Размеры: 8х8 м.










