Обратная связь
Посчитать проект:
Задать вопрос:
Связаться с нами:
8 (495) 222-18-78
8 (916) 641-54-54
Кредит на дом

Кредитование. Материнский капитал. Военный капитал.
Типовой договор

Договор: скачать.
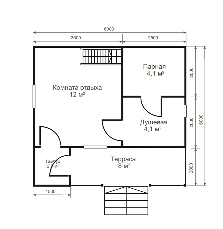
Проект бани №4
Главная » Все проекты » Проекты бань » Баня №4 со 2-м этажом
Размеры: 6 на 6 м. Общая площадь: 61 м2. Срок строительства: 1 месяц.
Цена: 630'000 рублей.
Брус: 150х150 мм.
Фундамент: ленточный монолитный.
Если будут вопросы по проекту или по комплектации бани, обязательно звоните или пишите! Ответим на все Ваши вопросы! Обратная связь.









