Обратная связь
Посчитать проект:
Задать вопрос:
Связаться с нами:
8 (495) 222-18-78
8 (916) 641-54-54
Кредит на дом

Кредитование. Материнский капитал. Военный капитал.
Типовой договор

Договор: скачать.
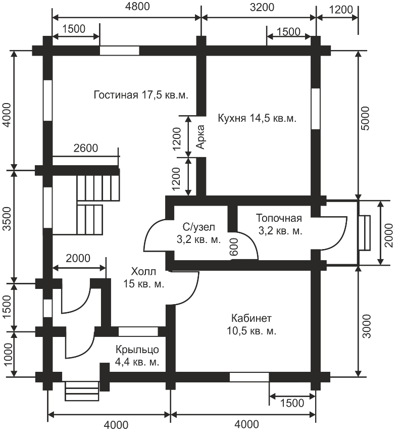
Проект дома из бревна 10 на 8 - Б16
| Навигация: ПрофильАрт - Проекты - Дома из оцилиндрованного бревна (проекты) |
Названиек проекта: Б-16. Размеры: 10х8.










